绝缘电线电缆单根垂直燃烧试验装置介绍
FTT的绝缘电线电缆单根垂直燃烧试验装置是为了评估在1kw预混合型火焰使用条件下单根垂直绝缘电线电缆的阻燃性能。
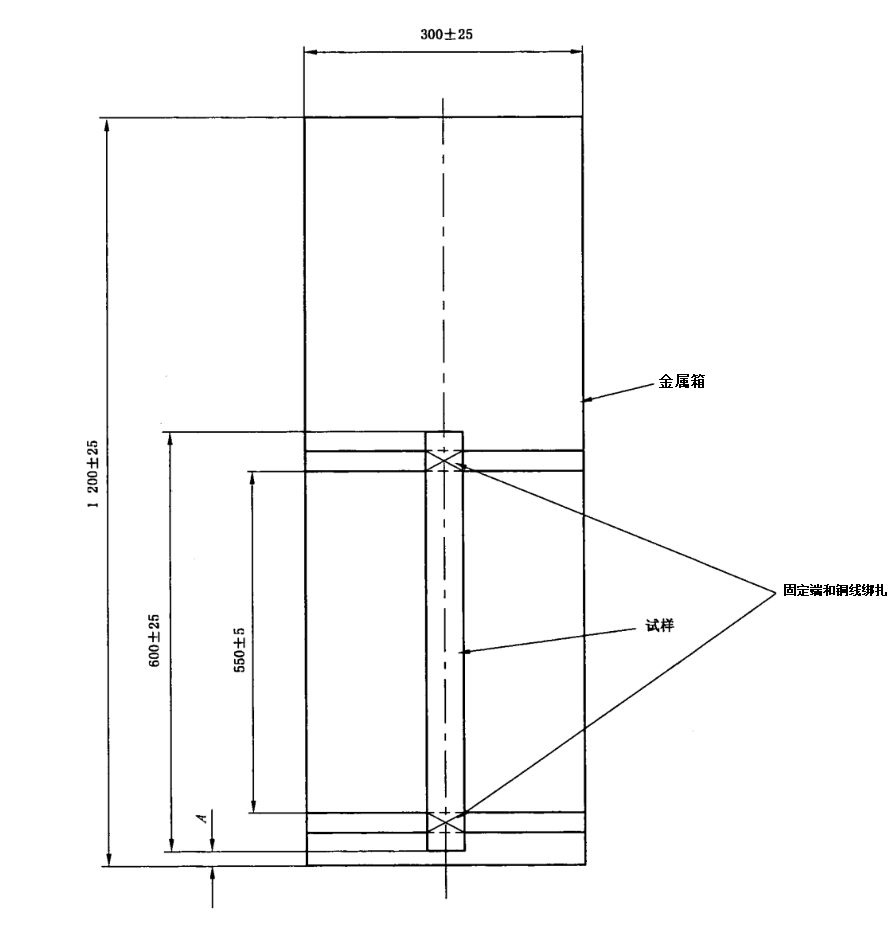
试验方法将一根60cm长的试样垂直固定在前壁开通的金属箱内,固定端上部和下部距离在550mm,固定试样时使试样下端距离金属箱底面约50mm。火焰长度175mm的丙烷燃烧器从距试样的上部固定端450mm的位置上火焰锥与电缆以45度角接触。用锋利的物体按压电缆表面,如果弹性表面在某点变为脆性(粉化)表面,则表明该点既是炭化部分起始点。如果炭化部分距离固定端下部不超过50mm,则电线电缆通过试验。
FTT的
绝缘电线电缆单根垂直燃烧试验装置作为一个完整的系统提供,包括所有必要功能,使用安全。它符合IEC 60332-1-2(1kW预混合火焰规程)和IEC 60332-1-3(火焰熔滴/颗粒测定规程)。
绝缘电线电缆单根垂直燃烧试验装置包含:
- 台式开放式测试屏幕
- 水平试样支架
- 符合IEC 60695-11-2标准的点火燃烧器,角度可从90°调整至45°,并具有气体安全系统
- 电子火花点火
- 带安全联锁,气体和空气流量调节的控制单元
- 带有气体和空气质量流量控制器的分流器面板,当检测到火焰时,可精确控制流量